Fakta
| Ejendomstype: | Kontor |
| Landsdel: | København By |
| Areal: | 150 m2 |
| Pris / m²: | DKK 2.350 |
| Årlig leje: | DKK 352.500 |
Nørregade 13, baghus, 1., 1165 København K
Kontorlejemål
i gennem-renoveret ejendom
Lejemål
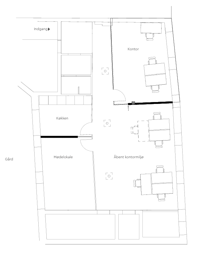
Lejemålet er på i alt 150 m², beliggende på 1. sal i baghuset i den historiske bygning, der oprindeligt blev opført i 1732 og tegnet af arkitekten J.C. Krieger.
Adgang til lejemålet sker direkte fra gaden, igennem en rundbuet portal med flotte dekorative indfatninger. Herefter fører en dør en direkte op til lejemålet.
Når man kommer ind i lejemålet bliver man mødt af et veldisponeret kontorlejemål.
Gulvene er lavet af mikrocement og væggene er pudset hvide, hvilket giver et lyst og rummeligt indtryk.
Lejemålet er bygget som et åbent kontormiljø, med tilhørende kontor/mødelokaler. I mødelokalet finder man charmerende detaljer, som en fransk altandør der åbner op til den skønne gård, som er til fælles benyttelse. Et andet fælles udeareal er to tagterrasser. Her kan man nyde udsigten ud over byens velkendte tårne og spir.
I midten af lejemålet finder man et historisk monument – en gammel vareelevator. Dette minder en om den tidslomme man befinder sig i.
Lejemålet er endvidere udstyret med et velfungerende køkken.
Beliggenhed
Lejemålet er beliggende i det centrale København på den historisk prægede Nørregade.
Området er i udkanten af det populære latinerkvarter.
I området finder man både den velkendte Vor Frue Kirke, Københavns Universitet samt flere gode hoteller.
Området er kendt for de mange fredede samt bevaringsværdige ejendomme, der besidder en stor kulturhistorie.
Der er i området flere grønne oaser samt parker, kulturliv, specialforretninger, high-street shopping samt forskellige uddannelsesinstitutioner. Offentlig transport er kun et stenkast derfra via Nørreport St. Herfra afgår der Metro, Regionaltog, S-tog samt flere centrale buslinjer.
Københavns Kommune går i overvejelser om hvorvidt Nørregade skal omdannes til cykel- og gågade. Et sådan tiltag vil nedsætte trafikken væsentligt og bidrage til den hyggelige atmosfære omkring ejendommen.
Lejemål
Lejemålet er på i alt 150 m², beliggende på 1. sal i baghuset i den historiske bygning, der oprindeligt blev opført i 1732 og tegnet af arkitekten J.C. Krieger.
Adgang til lejemålet sker direkte fra gaden, igennem en rundbuet portal med flotte dekorative indfatninger. Herefter fører en dør en direkte op til lejemålet.
Når man kommer ind i lejemålet bliver man mødt af et veldisponeret kontorlejemål.
Gulvene er lavet af mikrocement og væggene er pudset hvide, hvilket giver et lyst og rummeligt indtryk.
Lejemålet er bygget som et åbent kontormiljø, med tilhørende kontor/mødelokaler. I mødelokalet finder man charmerende detaljer, som en fransk altandør der åbner op til den skønne gård, som er til fælles benyttelse. Et andet fælles udeareal er to tagterrasser. Her kan man nyde udsigten ud over byens velkendte tårne og spir.
I midten af lejemålet finder man et historisk monument – en gammel vareelevator. Dette minder en om den tidslomme man befinder sig i.
Lejemålet er endvidere udstyret med et velfungerende køkken.
Beliggenhed
Lejemålet er beliggende i det centrale København på den historisk prægede Nørregade.
Området er i udkanten af det populære latinerkvarter.
I området finder man både den velkendte Vor Frue Kirke, Københavns Universitet samt flere gode hoteller.
Området er kendt for de mange fredede samt bevaringsværdige ejendomme, der besidder en stor kulturhistorie.
Der er i området flere grønne oaser samt parker, kulturliv, specialforretninger, high-street shopping samt forskellige uddannelsesinstitutioner. Offentlig transport er kun et stenkast derfra via Nørreport St. Herfra afgår der Metro, Regionaltog, S-tog samt flere centrale buslinjer.
Københavns Kommune går i overvejelser om hvorvidt Nørregade skal omdannes til cykel- og gågade. Et sådan tiltag vil nedsætte trafikken væsentligt og bidrage til den hyggelige atmosfære omkring ejendommen.